Nouveau projet Rapi-Deuche

Vous avez trouvé une superbe sortie de grange ? Vous voulez montrer votre restauration ? Ou tout simplement présenter votre titine ? Alors il faut poster ici !
Avatar du membre
YoPac
Messages : 6617
Enregistré le : 13 févr. 2011 20:40
Localisation : Villefranche sur Saône (69)

Re: Nouveau projet Rapi-Deuche

Message non lu par YoPac »

:okayd:
Yopac


Image
Avatar du membre
Christophe
Messages : 914
Enregistré le : 08 nov. 2015 17:30
Localisation : St Victor (07)

Re: Nouveau projet Rapi-Deuche

Message non lu par Christophe »

L'achat il y a quelques jours d'un pèse quelqu'un (un pèse personne ça ne sert à rien) m'a permis de renseigner le poids du châssis roulant et de la caisse basse.
Le châssis dans une configuration 02 roues pèse 104 Kg dont 24. 5 Kg à la flèche.
Avec la roue de secours dans le panier arrière, j'arrive à 110 Kg dont 22.5 Kg sur la boule.
Ce qui est assez bizarre car 3 roues complètes pèsent 23.5 Kg...
Il y a donc une petite portion d'erreur dans ces relevés.
La caisse formant plancher, passages de roues et 4 côtés de 32 cm de hauteur pèse 32 Kg.

La représentation graphique de la partie aménagement, parois hautes et toit sort à 45 Kg sur l'ordinateur.
Il faut ajouter 10 Kg de matelas mousse HR 35 Kg/m3.

On arrive à un total d'environ 200 Kg avec approximativement 40 Kg sur la boule. Cette dernière donnée étant à vérifier une fois la construction terminée.
Dyane 6 1977 / LNA Club 1982 / 2CV 6 Club 1983 / LNA 11E 1983 / Visa Challenger 1986 / BX 1987 / C15E 475 Kg 1988 / ZX Break Tentation 1997 / Saxo BiC 2 1.1i 2003
Avatar du membre
YoPac
Messages : 6617
Enregistré le : 13 févr. 2011 20:40
Localisation : Villefranche sur Saône (69)

Re: Nouveau projet Rapi-Deuche

Message non lu par YoPac »

Coucou mon Christophe ;;
Je viens de lire ton dernier message avec tes données chiffrées très précises.
Et je m'étonne du poids que tu annonces pour le matelas, je n'aurais pas cru que ça pesait si lourd !
A moins que ce ne soit une spécificité des matelas ardéchois qui servent de coffre pour planquer les biffetons ? &a&
sors
Yopac


Image
J Paul
Messages : 983
Enregistré le : 09 janv. 2016 10:09

Re: Nouveau projet Rapi-Deuche

Message non lu par J Paul »

Ce n'est pas les biffetons qu'il cache dans les matelas, mais les lingots.......
Si le travail c'est l'opium du peuple alors je ne veux pas finir drogué. Boris Vian
Avatar du membre
Christophe
Messages : 914
Enregistré le : 08 nov. 2015 17:30
Localisation : St Victor (07)

Re: Nouveau projet Rapi-Deuche

Message non lu par Christophe »

Salut tout le monde.
C'est vrai que 10 Kg c'est beaucoup. J'ai pris en considération une densité forte, je descendrai sans doute sur du 28kg/m3 et réduirait l'épaisseur un peu.

Hier, profitant d'un temps de Normandie, j'ai entrepris de repeindre le dessous du plancher.
À la base, lors de la sortie de l'usine de Chatillon Sur Colmont, puis Mayenne (53), les Rapido ont un dessous peint en gris clair. Celle ci a reçu une autre couche de protection noire (que je pensais être du goudron et apparemment non). Je rajoute moi même encore une couche, et même deux, d'une peinture microporeuse d'une couleur fiente de pigeon. Du plus bel effet ! :lol:
_20200502_065840.JPG
_20200502_070953.JPG
_20200502_070034.JPG
Enfin, après avoir été trempé jusqu'à l'os, j'ai continué à l'abris dans le salon l'edition des plans pour les différentes pièces...
Dyane 6 1977 / LNA Club 1982 / 2CV 6 Club 1983 / LNA 11E 1983 / Visa Challenger 1986 / BX 1987 / C15E 475 Kg 1988 / ZX Break Tentation 1997 / Saxo BiC 2 1.1i 2003
Avatar du membre
jacques
Messages : 3864
Enregistré le : 22 mars 2011 20:23
Localisation : Lyon - Ouagadougou

Re: Nouveau projet Rapi-Deuche

Message non lu par jacques »

Je la trouve plutôt blanche ta peinture, bien en phase avec celle des cotés.
Avatar du membre
Christophe
Messages : 914
Enregistré le : 08 nov. 2015 17:30
Localisation : St Victor (07)

Re: Nouveau projet Rapi-Deuche

Message non lu par Christophe »

C'est vrai. Sur les photos ça ressort pas pareil.

Pour les lingots, ils sont là ! :lol:
_20200502_080532.JPG
Dyane 6 1977 / LNA Club 1982 / 2CV 6 Club 1983 / LNA 11E 1983 / Visa Challenger 1986 / BX 1987 / C15E 475 Kg 1988 / ZX Break Tentation 1997 / Saxo BiC 2 1.1i 2003
J Paul
Messages : 983
Enregistré le : 09 janv. 2016 10:09

Re: Nouveau projet Rapi-Deuche

Message non lu par J Paul »

Au bout d'un certain temps, on les entends plutôt ces lingots..malgré ces petits désagréments, c'est appétissant comme plat et ça tient bien au ventre ...
Si le travail c'est l'opium du peuple alors je ne veux pas finir drogué. Boris Vian
Avatar du membre
Christophe
Messages : 914
Enregistré le : 08 nov. 2015 17:30
Localisation : St Victor (07)

Re: Nouveau projet Rapi-Deuche

Message non lu par Christophe »

Je confirme ! Et je le re confirme ! :lol:
Dyane 6 1977 / LNA Club 1982 / 2CV 6 Club 1983 / LNA 11E 1983 / Visa Challenger 1986 / BX 1987 / C15E 475 Kg 1988 / ZX Break Tentation 1997 / Saxo BiC 2 1.1i 2003
Avatar du membre
Christophe
Messages : 914
Enregistré le : 08 nov. 2015 17:30
Localisation : St Victor (07)

Re: Nouveau projet Rapi-Deuche

Message non lu par Christophe »

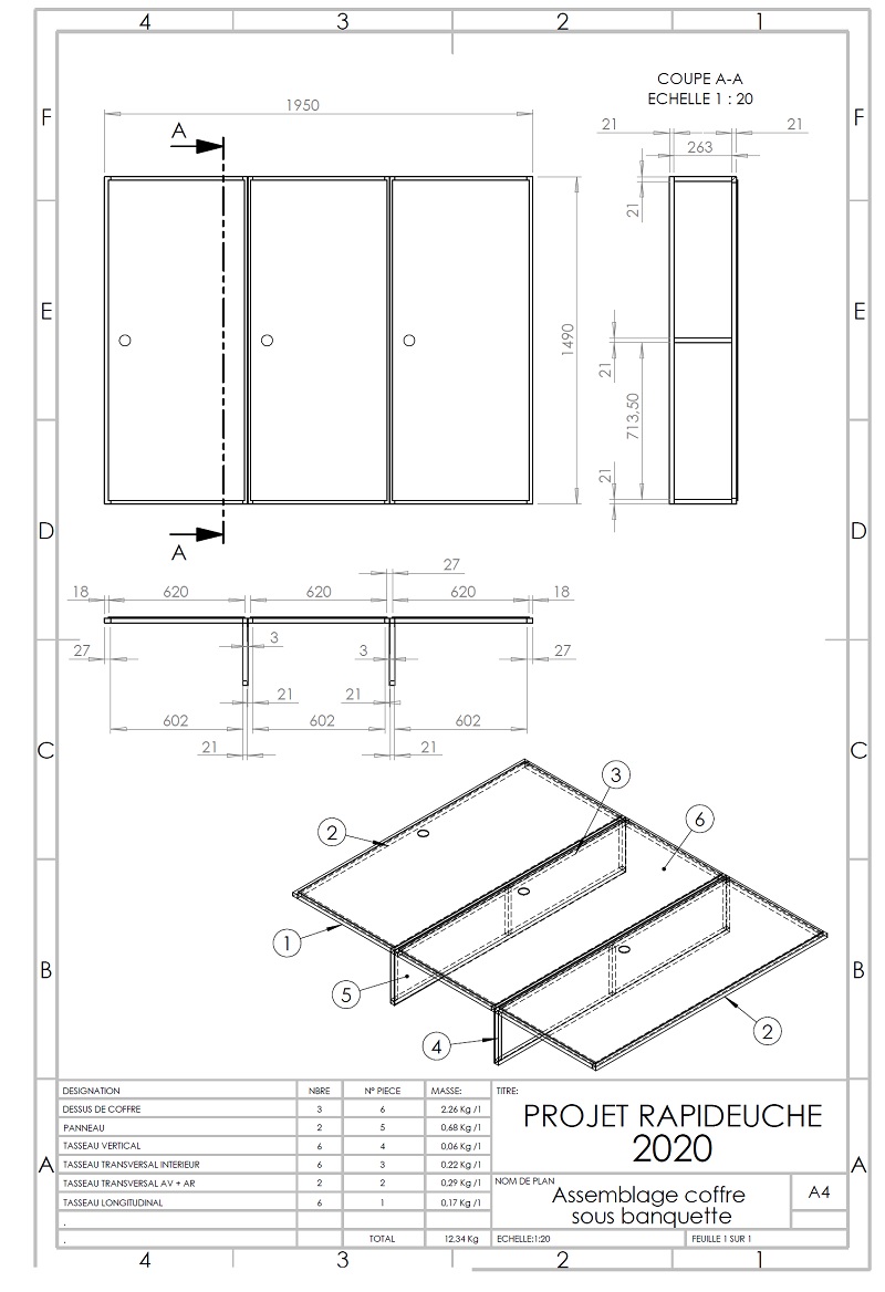
Ca y est les plans sont faits.
C'est pas digne d'un professionnel mais tant que je comprends ce que j'ai tracé c'est déjà pas si mal... &a&

Y a plus qu'à les imprimer.
assemblage sous banquette.jpg
assemblage partie haute.jpg
paroie gauche.jpg
Dyane 6 1977 / LNA Club 1982 / 2CV 6 Club 1983 / LNA 11E 1983 / Visa Challenger 1986 / BX 1987 / C15E 475 Kg 1988 / ZX Break Tentation 1997 / Saxo BiC 2 1.1i 2003
Avatar du membre
YoPac
Messages : 6617
Enregistré le : 13 févr. 2011 20:40
Localisation : Villefranche sur Saône (69)

Re: Nouveau projet Rapi-Deuche

Message non lu par YoPac »

Tu m'impressionne mon Christophe :okayd:
Moi qui fait presque tout à la main, je suis bluffé :salut:
Ne va pas répété ça à tout le monde car je sais qu'il y a de mauvaises langues par ici... :mrgreen:
Yopac


Image
Avatar du membre
Christophe
Messages : 914
Enregistré le : 08 nov. 2015 17:30
Localisation : St Victor (07)

Re: Nouveau projet Rapi-Deuche

Message non lu par Christophe »

Promis je ne répéterai pas que ^^ Môssieur le Président et bah il fait ça tout à la main ! &a&
Dyane 6 1977 / LNA Club 1982 / 2CV 6 Club 1983 / LNA 11E 1983 / Visa Challenger 1986 / BX 1987 / C15E 475 Kg 1988 / ZX Break Tentation 1997 / Saxo BiC 2 1.1i 2003
Avatar du membre
Christophe
Messages : 914
Enregistré le : 08 nov. 2015 17:30
Localisation : St Victor (07)

Re: Nouveau projet Rapi-Deuche

Message non lu par Christophe »

Au risque de me faire insulter... Je n'ai pour ainsi rien fait sur cette construction... :filmdirecteur2:
Je me suis contenté hier de reposer la caisse sur son châssis :help: (plus facile à écrire qu'à faire !) après avoir remis les amortisseurs et verni les côtés intérieurs.
Ensuite j'Y ai collé le lino sur le plancher histoire d'avoir une surface propre pour entreposer les bagages futurs.

J'ai pris une nouvelle mesure de poids... 145 Kg dont 21 Kg à la roue jockey. Ça valide mes estimations. :arrow:

Quand les services "découpe bois" des magasins de bricolage seront de nouveaux opérationnels, je pourrais enfin attaquer la construction des 03 coffres sous lit...
Dyane 6 1977 / LNA Club 1982 / 2CV 6 Club 1983 / LNA 11E 1983 / Visa Challenger 1986 / BX 1987 / C15E 475 Kg 1988 / ZX Break Tentation 1997 / Saxo BiC 2 1.1i 2003
J Paul
Messages : 983
Enregistré le : 09 janv. 2016 10:09

Re: Nouveau projet Rapi-Deuche

Message non lu par J Paul »

A quand même, 145kg, le confinement a eu des effets ;; ;; &a& &a& je ne &a& &a& pensais pas avoir de la concurrence
Si le travail c'est l'opium du peuple alors je ne veux pas finir drogué. Boris Vian
Avatar du membre
Christophe
Messages : 914
Enregistré le : 08 nov. 2015 17:30
Localisation : St Victor (07)

Re: Nouveau projet Rapi-Deuche

Message non lu par Christophe »

&a&
Dyane 6 1977 / LNA Club 1982 / 2CV 6 Club 1983 / LNA 11E 1983 / Visa Challenger 1986 / BX 1987 / C15E 475 Kg 1988 / ZX Break Tentation 1997 / Saxo BiC 2 1.1i 2003
Avatar du membre
YoPac
Messages : 6617
Enregistré le : 13 févr. 2011 20:40
Localisation : Villefranche sur Saône (69)

Re: Nouveau projet Rapi-Deuche

Message non lu par YoPac »

&a&
Ce sera la surprise lorsque nous pourrons -enfin- nous revoir &a&
On ne va pas en reconnaitre certains apparemment &a&
Yopac


Image
Avatar du membre
Christophe
Messages : 914
Enregistré le : 08 nov. 2015 17:30
Localisation : St Victor (07)

Re: Nouveau projet Rapi-Deuche

Message non lu par Christophe »

Ça y est ça attaque !
Création des cloisons de coffre sous le lit.
_20200523_134035.JPG
_20200523_134105.JPG
_20200523_134127.JPG
Dyane 6 1977 / LNA Club 1982 / 2CV 6 Club 1983 / LNA 11E 1983 / Visa Challenger 1986 / BX 1987 / C15E 475 Kg 1988 / ZX Break Tentation 1997 / Saxo BiC 2 1.1i 2003
Avatar du membre
Christophe
Messages : 914
Enregistré le : 08 nov. 2015 17:30
Localisation : St Victor (07)

Re: Nouveau projet Rapi-Deuche

Message non lu par Christophe »

Et de deux !
_20200523_134203.JPG
Dyane 6 1977 / LNA Club 1982 / 2CV 6 Club 1983 / LNA 11E 1983 / Visa Challenger 1986 / BX 1987 / C15E 475 Kg 1988 / ZX Break Tentation 1997 / Saxo BiC 2 1.1i 2003
Avatar du membre
jacques
Messages : 3864
Enregistré le : 22 mars 2011 20:23
Localisation : Lyon - Ouagadougou

Re: Nouveau projet Rapi-Deuche

Message non lu par jacques »

il sait tout faire ce Christophe, carrossier, menuiser, mécanicien, architecte.... impressionnant.
J Paul
Messages : 983
Enregistré le : 09 janv. 2016 10:09

Re: Nouveau projet Rapi-Deuche

Message non lu par J Paul »

Christophe,

Je ne sais pas si tu as prévu une ventilation ou aération qui réduira la condensation. Même en pleine été, après une bonne nuit, le matin tu as un bon taux d'humidité
Si le travail c'est l'opium du peuple alors je ne veux pas finir drogué. Boris Vian
Répondre